Nyheder
105 nyheder fundet
December 2025

Grøn Trepart: Byråd godkender omlægningsplaner
Som en del af det nationale samarbejde om Grøn Trepart har tre lokale grønne treparter lavet omlægningsplaner for oplandet til Randers Fjord, Mariagerfjord og Hjarbæk Fjord. Nu er de principgodkendt af Randers Byråd, som dermed siger ok til, at der kan arbejdes videre med planerne i et frivilligt samarbejde med lodsejere.
November 2025

De første undersøgelser er godt nyt for Flodlejet
Drømmen om at Flodlejet kommer til at skabe flodliv ved Tronholmparken og Bolværksgrunden i Randers er nu tættere på at blive virkelighed. På mødet den 24. november 2025 har Randers Byråd godkendt et dispositionsforslag, der bekræfter at Flodlejet er realistisk herunder, at det er muligt at etablere Danmarks eneste naturflodbad på stedet.

Byråd godkender nyt regulativ for Gudenåen
Randers Byråd har på mødet den 24. november 2025 godkendt et nyt regulativ for Gudenåen fra Silkeborg til Randers. Regulativet, der nu er godkendt af alle fire kommuner på strækningen, fastsætter fælles regler for blandt andet grødeskæring

Endeligt valgresultat: Her er det nye byråd
Valgbestyrelsen har godkendt resultatet af kommunalvalget i Randers Kommune. Her kan du se det endelige valgresultat med navne på medlemmerne af det nye byråd og de personlige stemmetal.
Oktober 2025

Zonemodel skal sikre gode parkeringsforhold i Randers By
Randers Kommune vil opdele midtbyen i seks parkeringszoner, der skal bidrage til at sikre gode parkeringsforhold for beboere og gæster i Randers By. Samtidig skal der indføres betalingsparkering og beboerlicenser i flere områder. Det har Randers Byråd besluttet på mødet den 28. oktober 2025.

Planen for Randers Kommunes fysiske udvikling er vedtaget
På mødet den 28. oktober 2025 har Randers Byråd vedtaget Kommuneplan 2025 og dermed, hvordan Randers Kommunes byer og natur skal udvikles i de næste 12 år.

Borgerne inviteres til at udvikle Parken Tirsdalen
Parken Tirsdalen er én af Randers Kommunes tre bydelsparker, og nu inviteres borgerne til at være med til at udvikle parken. Kommunen ønsker at inddrage de mennesker, der bor tæt på eller bruger parken, så deres idéer og erfaringer kan blive en del af arbejdet med parkens fremtid.
September 2025

Asferg får markant løft: Områdefornyelse på vej
En kommende områdefornyelse i Asferg skal styrke fællesskabet, skabe nye grønne mødesteder og forskønne bymidten. Randers Byråd har på mødet den 22. september 2025 godkendt programmet, som er blevet til i tæt samarbejde med lokale borgere og ildsjæle.

Cykelsti og fortov bliver spærret under byggeri af Bryggen
I den kommende tid bliver der etableret en alternativ rute for cyklister og gående i området mellem Havnegade og Østergrave. Det sker i forbindelse med byggeriet af Bryggen - den første bygning, der opføres som en del af Flodbyen.
August 2025
Juni 2025

Stort engagement i arbejdet med Fremtidens Randers Kommune
Første etape af arbejdet med Fremtidens Randers Kommune er nu afsluttet, og interessen har været overvældende. Rundt omkring i hele kommunen har borgere taget aktiv del i at forme fremtiden sammen med os.

Klimabro: Den samfundsøkonomiske gevinst stiger markant og se hvordan klimabroen påvirker din kørsel
En ny såkaldt samfundsøkonomisk analyse af Klimabroen viser, at broen er en endnu bedre samfundsinvestering end først antaget. Borgerne kan spare 2.500 timer i trafikken hver dag, når Klimabroen er etableret. Nu har Randers byråd netop vedtaget, at klimabroen fortsat skal forbindes til Udbyhøjvej og samtidig vil dæmningen over det nordlige havnebassin blive anlagt i kote 4 for at øge klimasikringen.
Maj 2025

Ny ansøgningsrunde til områdefornyelse i landsbyerne åbner
Nu åbner Randers Kommune for, at interesserede landsbyer kan melde sig på banen til at få del i omkring 15 millioner kroner til områdefornyelser. Pengene fordeles i efteråret 2025

Randers Kommune inviterer til dialog om fremtiden
Hvordan skal Randers Kommune udvikle sig i de kommende år? Det spørgsmål stilles nu åbent til borgere, foreninger og virksomheder i hele kommunen. Med Hvidbogen om Fremtidens Randers som afsæt inviterer kommunen i juni til en række dialogmøder – særligt i de lokale forsamlingshuse.
April 2025

Etablering af hybridbane på Cepheus Park går nu i gang
Der har nu været afholdt udbud vedrørende en hybridbane i Cepheus Park, og det bliver Danjord der skal etablere en hybridbane i Cepheus Park og Danregn, som skal lave et nyt vandingsanlæg til banen.

Randers Kommune vedtager ambitiøs energistrategi og genoptager behandlingen af sager om store energianlæg
Inden 2045 skal hele Randers Kommune være selvforsynende med grøn energi og have opnået klimaneutralitet. Det er målsætningen i Energistrategi Randers, som byrådet har vedtaget på mødet den 31. marts 2025. Med vedtagelsen bliver den politiske behandling af sagerne om store energianlæg ved Overgaard/Sødring, Dalbyneder og Purhus nu også genoptaget.

Landdistriktskonference 2025: Hvad skal arealerne i landdistrikterne bruges til?
Hvordan skal landdistrikternes arealer anvendes i fremtiden? Det spørgsmål er i centrum, når Landdistriktsudvalget i Randers Kommune inviterer til den årlige landdistriktskonference onsdag den 7. maj 2025 på Gjessinggaard Gods.
Marts 2025

Ny trafikløsning på vej i Fårup efter stibro-lukning
I marts 2024 blev stibroen over jernbanen i Fårup lukket på grund af alvorlige skader. Nu har Randers Byråd har besluttet at etablere et fast trafikstyret signalanlæg på vejbroen, som skal sikre en trafiksikker passage for fodgængere og cyklister.

Byrådet inviterer borgerne med til at forme Fremtidens Randers
I slutningen af maj 2025 bliver byrådet i Randers præsenteret for indholdet i en Hvidbog, der beskriver Randers Kommunes styrker og udfordringer. Hvidbogen bliver delt op i en række temaer som for eksempel lokalt arbejdsmarked, boligmasse, kultur- og foreningsliv med mere. Hvidbogen skal danne grundlag for et efterfølgende arbejde med en strategisk plan for udvikling af kommunen i de kommende år.

Grønt varmeanlæg kan være på vej: Byrådet sender plan i høring
På byrådsmødet 31. marts 2025 sendte Randers Byråd Lokalplan 753 i offentlig høring. Planen kan gøre det muligt at udvide Verdos varmecentral på Bronzevej i Randers SV. Udvidelsen omfatter blandt andet en 33 meter høj akkumuleringstank til varmeoplagring og et anlæg til fjernkøling.

Lokalplan 755 for centralt Flodby-projekt på vej i høring
Randers Byråd sender forslag til ny lokalplan i høring. Planen handler om udviklingen af området mellem Østergrave og Havnegade i Randers Midtby.

Koncepter for Flodlejet udstilles
Se planerne for Flodlejet og få en snak med forvaltningen, når vinderkonceptet og de fire øvrige forslag til koncepter udstilles i Kulturhuset i Randers og No. 17.

Landdistrikterne hylder deres helte – indstil dine favoritter nu
Randers Kommunes Landdistriktsudvalg inviterer borgere til at nominere kandidater til de prestigefyldte priser Årets Ildsjæl og Årets Initiativ 2024. Med henholdsvis 10.000 kr. og 25.000 kr. på spil er det tid til at sætte fokus på de personer og projekter, der gør en forskel i landdistrikterne.
Februar 2025

Vildt koncept for Flodlejet vil skabe flodliv i Randers
Det bliver et hold af rådgivere med LYTT Architecture A/S i spidsen, der kommer til at arbejde videre med at tegne og projektere Flodlejet. Vinderholdet skiller sig ud med et vildt koncept, der blandt andet byder på Danmarks første naturflodbad, flodpool, sauna, flodhus og Randers' længste bænk.

Skal vi sætte din landsby på landkortet?
Randers Kommune leder efter 3 landdistriktsområder til at stå i centrum for målrettede markedsføringskampagner – og din landsby kan være en af dem.

Unik kunst til din landsby – få støtte til gavlmaleri
Gavlmalerier er ikke kun for større byer. Randers Kommune åbner en pulje på 50.000 kroner, der kan søges af driftige lokale ildsjæle, som ønsker at realisere et stort kunstværk, der kan forskønne bybilledet og styrke fællesskabet i en af kommunens landsbyer.

Randers-bogstaverne ude af drift
De ikoniske lysende Randers-bogstaver, der gennem flere år har været et stemningsfuldt vartegn for byen, lyser i øjeblikket ikke. En inspektion har afsløret skader på LED-belysningen. Der arbejdes på en løsning.

Projekter om fremtidens landsby skaber interesse i hele landet – nu udstilles de i Albæk.
En række projektideer om, hvordan fremtidens landsby kan se ud, er på landsturné. Udstillingen er nu landet i Albæk øst for Randers - landsbyen, der var omdrejningspunkt for den landsdækkende konkurrence.

Nye projekter med fokus på fødevarer, oplevelser og aktive mødesteder
Bestyrelsen for LAG Randers-Favrskov har i første runde af 2025 uddelt midler til fire nye projekter i Randers Kommune. Projekterne fokuserer på oplevelser, fødevarer og aktive mødesteder og bidrager til udviklingen af lokalområdet.
Januar 2025

De bydende til den nye idrætshal i Dronningborg er fundet
Randers Kommune har sammen med sin rådgiver DK2 og en arbejdsgruppe bestående af Dronningborg Boldklub, RGF og Arena Randers udpeget de entreprenører, som er udvalgt til at sende tilbud på den nye hal i Dronningborg.

Ny arkitekturpolitik byder på nyt værktøj til dialog og kvalitet
Byrådet i Randers Kommune har netop vedtaget en ny arkitekturpolitik, der byder på et værktøj til at styrke kvalitet, bæredygtighed og lokal identitet i fremtidige og eksisterende bygninger og byrum. Den skal samtidig være afsæt for en bedre dialog om arkitektur og byudvikling.
December 2024
November 2024

Snart kan projekter søge støtte fra Grøn Pulje
Puljen på godt 2,5 millioner kroner giver alle mulighed for at søge om støtte til projekter i lokalområdet. Interesserede kan få mere at vide, når der er informationsmøde den 11. december.

Fremtidens Randers – generationsprojekt sættes i gang med nyt rådgivningspanel
Randers Kommune har en række styrker men også nogle udfordringer. Det skal en hvidbog nu beskrive og dermed skabe fundament for kommende politiske beslutninger om strategi, mål og løsninger. Til at hjælpe med udarbejdelsen af hvidbogen er der netop nedsat et rådgivende ekspertpanel - med Nina Smith, professor i økonomi ved Aarhus Universitet som formand.

Bygning på ”Det gamle Polititorv” bliver nu til 12 nye parkeringspladser
I løbet af de kommende måneder bliver bebyggelsen på Vestergade 5 revet ned for at blive erstattet af 12 midlertidige parkeringspladser. På sigt skal nedrivningen gøre plads til, at arealet kan bruges til byudvikling.

Fem teams er klar til udbud om at udvikle Flodlejet
Fem stærke hold af rådgivere er kvalificeret til at deltage i konkurrencen om at udvikle Flodlejet. Hvert hold skal nu lave et forslag til et koncept for området, der bliver byens nye centrale plads ved vandet.
Oktober 2024

Efter debat om Klimabroen: Flere detaljer skal undersøges
På baggrund af offentlighedsfasen om Klimabroen over Randers Fjord vil Randers Kommune lave supplerende undersøgelser af blandt andet vejforløb, stiforbindelse og af mulige scenarier for lystbådehavnen.

Strategi er i høring: Randers skal være klimaneutral og selvforsynende med energi
Inden 2045 skal Randers Kommune være klimaneutral og selvforsynende med energi. Det er blandt målene i et forslag til en ny energistrategi, som Randers Byråd på mødet den 28. oktober 2024 har besluttet at sende i offentlig høring i otte uger.

Et års aktiviteter i Haslund på én dag
Beboerne i Haslund beviste deres gode sammenhold, da de lørdag den 12. oktober afholdt et års aktiviteter på bare én dag.

Kvashegnet er en succes - De lokale sparer turen til genbrugspladsen
Et fælles kvashegn i Ålum har gjort det nemt for haveejerne at komme af med grenaffaldet. Modtagelsen har været så god, at hegnet nu udvides.

LAG Randers-Favrskov støtter fem nye projekter i landdistrikterne
Der er i årets sidste ansøgningsrunde givet støtte til både solceller, kajakker, keramik og nye tage. Flere af projekterne, der har modtaget støtte, ligger i Randres Kommune.

Mød os på Bolig- og Livstilsmessen 2024
Randers Kommune er på messe i Arena Randers den 12.-13. oktober.

Kronjyllands nye mødested er klar til indvielse
Klyngehuset er et åbent og fleksibelt mødested, der styrker fællesskabet og fritidslivet i de 13 landsbyer i Landsbyklyngen Kronjylland og alle interesserede er velkomne, når der er officiel indvielse d. 11. oktober.
September 2024

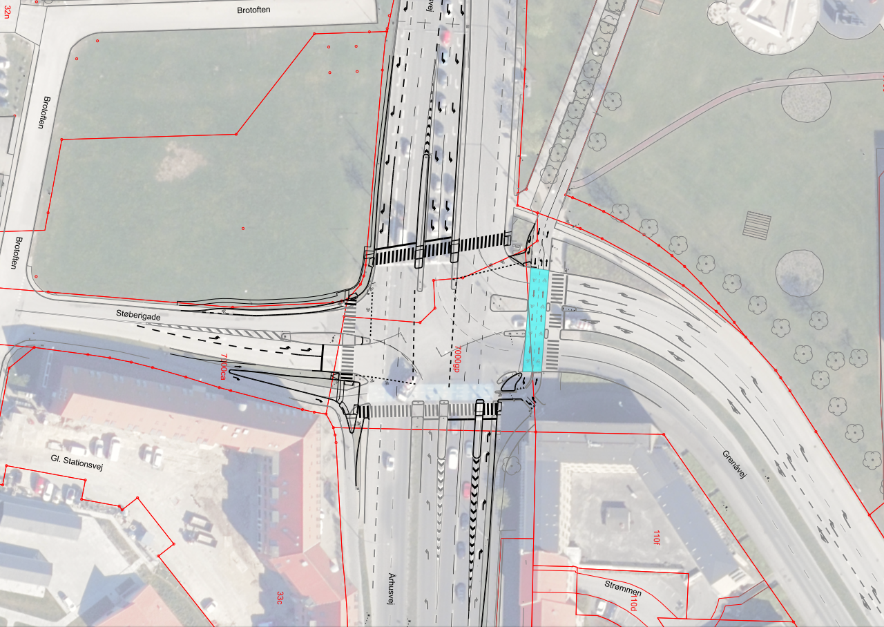
Forbedret udgave af lyskryds er klar den 1. oktober
Ombygningen af krydset Århusvej/Grenåvej nærmer sig sin afslutning. Natten mellem mandag den 30. september og tirsdag den 1. oktober 2024 kommer der lys i de nye signalmaster, og derefter er den nye og mere sikre udgave af krydset klar til brug.

Harbour Energy inviterer til informationsmøde om CO2-lagring
Harbour Energy inviterer til informationsmøde om CO2-lagringsprojekt i Gassum-strukturen i den nordlige del af Randers Kommune

Stierne i Spentrup bliver for alle lette trafikanter
Fra udgangen af september er der ikke længere forbud mod at køre på knallert på stier i Spentrup. Det betyder, at alle lette trafikanter skal deles om stierne foreløbigt som et 1-årigt forsøg.

Planer om stort boligområde i Over Hornbæk kommer i høring
Et forslag til en ny lokalplan for et område ved Gl. Viborgvej i Over Hornbæk vil gøre det muligt at opføre i alt 139 nye boliger. Nu kommer forslaget i høring.

Vinderprojekt viser vejen for fremtidens landsbyer
Torsdag blev sløret løftet for vinderen af idékonkurrencen ”Det er dejligt på landet”.
August 2024
Juni 2024

Ombygningen af krydset Grenåvej/Århusvej er i gang
Frem til udgangen af september vil der blive arbejdet med at ombygge krydset Grenåvej/Århusvej, så det bliver mere sikkert for lette trafikanter og vil afvikle trafikken bedre. Arbejdet er planlagt, så den del, der generer trafikken mest, bliver udført i sommerperioden.
Maj 2024

Aktiv og festlig indvielse af Korshøj Idrætscenter
En betydningsfuld milepæl fandt sted for idrætslivet i Harridslev og omegn den 25. maj. På den årlige klubdag i SMIFF09 med mange sportslige aktiviteter for klubbens 1200 medlemmer blev Korshøj Idrætscenter indviet.

Clausholmvej bliver spærret ved Kristrupvej i nordlig retning
På strækningen mellem Kristrupvej og Grenåvej bliver Clausholmvej nu spærret for al trafik i nordgående retning. Det sker i forbindelse med ombygningen af det lyskryds, der skal forbinde Ny Havnevej med Clausholmvej og Grenåvej. Strækningen forventes at være spærret frem til den 5. juli 2024.

Lokale udviklingsprojekter modtager støtte fra landsbypuljen
En handicaptilgængelig naturlegeplads, udsmykning af købmandsgården i Asferg og bedre forhold for eldrevne køretøjer i Randers Motor Sport. Det er blot nogle af de 10 projekter, som nu får midler fra Landsbypuljen. Det har Landdistriktsudvalget netop besluttet.
April 2024

Stevnstrup kan fortsætte udvidelsen mod nord
På mødet den 29. april 2024 har Randers Byråd vedtaget en ny lokalplan, der gør det muligt at opføre 38 parcelhuse og 15 gårdhavehuse på et areal ved Skovparken i den nordlige del af Stevnstrup. Lokalplanen er sidste etape i en strukturplan for Stevnstrup, som den daværende Langå Kommune vedtog i år 2000.

Byrådet ønsker at afsøge muligheden for oprindelig placering af Ringboulevardens forlængelse
På mødet den 29. april 2024 har Randers Byråd besluttet, at den oprindelige placering af Ringboulevardens forlængelse vurderes i forhold til EU's habitatdirektiv. Formålet er at afklare, om vejen kan anlægges på denne strækning.

Ny strukturplan for Stevnstrup på plads
Fokus på forbedrede muligheder for bevægelse omkring Munkholmskolen og i bymidten, mens byudviklingen mod syd kobles sammen med kommuneplan 2025.

Fejring af 100.000 borgere sker synkront rundt i hele kommunen
I ikke mindre end 17 byer i Randers Kommune kan man den 13. april deltage i fejringen af, at kommunen har rundet 100.000 borgere. Det sker fra kl. 11.

Idékonkurrence i Albæk skal genskabe det gode liv på landet
Med udgangspunkt i landsbyen Albæk har Arkitektforeningen Østjylland og Randers Kommune onsdag (3/4-24) udskrevet idékonkurrencen "Det er dejligt på landet". Ambitionen med konkurrencen er at få nytænkende idéer og løsningsforslag, der kan omdanne og revitalisere landsbyer til at blive bæredygtige og levende samfund.
Marts 2024

Vi fejrer 100.000 borgere i kommunen
Randers Kommune har rundet 100.000 borgere. Det fejres i 17 byer i kommunen den 13. april fra kl. 11. Tidspunktet kan variere enkelte steder.

Nyt større boligområde kan nu etableres i Haslund
På mødet den 18. marts 2024 har Randers Byråd vedtaget en ny lokalplan, der gør det muligt at opføre næsten 100 nye boliger i Haslund i den sydvestlige del af Randers Kommune. Lokalplanen blev vedtaget sammen med tilhørende kommuneplantillæg og miljørapport.

Kirketorvet er ved at være klar til brug
Anlægsarbejdet med det nye kirketorv ved Sct. Mortens Kirke nærmer sig sin afslutning og en mere stemningsfuld plads med gode muligheder for både aktiviteter og afslapning er så småt klar til at blive indtaget.

Naturen i Hvidemølleområdet skal kobles sammen med byen
Randers skal bindes tættere til Gudenåens naturskønne arealer. Derfor startes arbejdet nu på den forundersøgelse og fordebat, der sigter mod at skabe adgange fra byen til den grønne kile langs Gudenåen, der strækker sig fra Den blå Bro og videre mod vest.
Februar 2024

Ideer og forslag til Klimabroen er vigtige for den videre planlægning
Randers Kommune har modtaget 71 ideer og forslag til den kommende planlægning for Klimabroen over Randers Fjord. Alle bemærkninger bliver nu bearbejdet i forvaltningen, inden de om nogle måneder kommer til politisk behandling i byrådet. Her skal byrådet også tage stilling til den videre proces.

Lokalplan for at bevare Langå Station er vedtaget
Efter en længere proces og dialog med Transportministeriet, Banedanmark og DSB har Randers Byråd på mødet den 26. februar 2024 vedtaget en lokalplan, der sikrer at Langå Station bliver bevaret. Samtidig gør lokalplanen det muligt at gennemføre den igangværende elektrificeringen af jernbanenettet.

Plan for områdefornyelse i Havndal får grønt lys
På mødet den 26. februar 2024 har Randers Byråd godkendt et program for en områdefornyelse i Havndal med fokus på at styrke og understøtte Havndals kulturmiljø og sammenhængskraft, skabe øget tryghed og trafiksikkerhed samt understøtte lokalt engagement og fællesskab. De konkrete projekter i programmet vil blive realiseret frem mod 2029.

Bækkestien er fredet og bliver bevaret som naturområde
Fredningsnævnet har besluttet af frede Bækkestien på baggrund af et initiativ fra Randers Kommune om at få rejst fredningssagen i nævnet. Dermed er det afgjort, at naturområdet langs Bækkestien vil blive bevaret som et grønt rekreativt område i Randers.
Januar 2024

Nu går byggeriet af Kronjyllands nye mødested i gang
Efter flere års forberedelser kan byggeriet af Klyngehuset Kronjylland nu gå i gang. Det bliver et åbent og fleksibelt mødested, der kan styrke fællesskabet og fritidslivet i de 13 landsbyer i Landsbyklyngen Kronjylland og alle interesserede er velkomne, når det første spadestik bliver taget den 31. januar 2024.

Planlægning af Klimabroen: Kom med dine ideer og forslag
Planlægningen der skal gøre etableringen af Klimabroen over Randers Fjord mulig, er sat i gang, og lige nu kan alle komme med ideer og forslag. Det er også muligt at få mere at vide og svar på spørgsmål, når der onsdag den 17. januar og torsdag den 8. februar 2024 er borgermøde i Kulturhuset i Randers.
December 2023

Byråd sætter gang i planlægningen for Klimabroen over Randers Fjord
Klimabroen over Randers Fjord bliver en ny vej- og stiforbindelse, der vil give en bedre trafikafvikling i Randers by, beskytte byen mod stormflod og skabe mulighed for byudvikling i og omkring havneområdet. På mødet den 18. december 2023 har byrådet igangsat planlægningen med en fordebat, hvor alle kan komme med ideer og forslag til projektet.
November 2023
Oktober 2023

Ny politik for udviklingen i landsbyer og lokalsamfund
Det skal være attraktivt at bo, leve og arbejde i landdistrikterne i Randers Kommune, og udviklingen i landsbyer og lokalsamfund skal tage højde for områdernes forskellighed, særlige identiteter og unikke potentialer. Det er blandt målene i en ny landdistriktspolitik, som Randers Byråd har vedtaget på mødet den 30. oktober. 2023.
September 2023

Næsten 100 nye boliger kan være på vej i Haslund
Et forslag til en ny lokalplan vil gøre det muligt at opføre et nyt boligområde i Haslund i den sydvestlige del af Randers Kommune. På mødet den 25. september 2023 besluttede byrådet, at forslaget sammen med tilhørende kommuneplantillæg og miljørapport skal i høring i 8 uger. Der vil også blive holdt et borgermøde om planerne
August 2023
Juli 2023

Landdistriktspolitikken for 2023-2026 er nu i høring
En ny landdistriktspolitik skal sætte de overordnede rammer for, hvilken retning Randers Kommune og lokale borgere ønsker, at landsbyerne og lokalsamfundene skal bevæge sig i. Politikken er i høring frem til fredag d. 23. august 2023.

Ny chef for Plan, By og Natur i Randers Kommune
Randers Kommune har netop ansat Randi Vuust Skall som ny chef for Plan, By og Natur. Hun får dermed ansvaret for en række fagområder i kommunen som byudvikling, planlægning, miljø og natur.

Finansieringen til nyt mødested er på plads
Med støtte fra både fonde, foreninger og Randers Kommune har de 13 landsbyer i Landsbyklyngen Kronjylland nu skaffet pengene til at bygge Klyngehuset Kronjylland. Det bliver et åbent og fleksibelt mødested, der kan styrke fællesskabet og fritidslivet i området. Efter planen går anlægsarbejdet i gang i løbet af efteråret.
Juni 2023

Nye retningslinjer for generende bygge- og anlægsarbejde
På mødet den 26. juni 2023 har Randers Byråd godkendt en forskrift, der skal begrænse miljøgenerne i forbindelse med visse såkaldte midlertidige aktiviteter. Det drejer sig fx om støj og støv under bygge- og anlægsarbejde. Forskriften, der både gælder for private og erhverv, betyder også, at der ikke længere er pligt til at anmelde disse aktiviteter til kommunen, hvis de overholder regulativet.

Forvandlingen af Justesens Plæne får støtte fra Nordea Fonden
Justesens Plæne skal fremover både beskytte byen mod stormflod og være et attraktivt, bynært naturområde. Og nu - kort før anlægsarbejdet går i gang - får projektet 1 million kroner i støtte fra Nordea Fondens "Her gror vi"-pulje til at udvikle et kommende bevægelsesområde med input fra byens borgere og til faciliteter og aktiviteter omkring biodiversitet. Også Klyngehuset Kronjylland får støtte fra fonden.

























